Rupteur de pont thermique pour les dalles en continuité en ITE | Isokorb D
Télécharger la photothèque
Caractéristiques principales
- Isolation performante de la liaison traitée
- Sous Document Technique d'Application toutes zones sismiques
- Système tenon-mortaise pour une facilité de mise en œuvre
- Assure une meilleure efficacité énergétique au bâtiment
- Convient aux bâtiments à faible consommation d’énergie
Cet élément de jonction peut reprendre des efforts tranchants positifs et négatifs ainsi que des moments positifs et négatifs, garantissant ainsi la stabilité et la performance de la liaison.
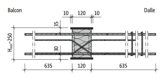
Il se décline dans des hauteurs standards allant de 160 à 250 mm, avec des options sur demande pour d'autres hauteurs.
Ce rupteur offre une isolation thermique performante à l’endroit de la jonction, contribuant à une meilleure efficacité énergétique du bâtiment.
Il utilise des armatures en acier inoxydable qui assurent durabilité et résistance accrues, même dans des conditions climatiques extrêmes.
De plus, le rupteur Isokorb D est conforme aux exigences des zones sismiques, garantissant sa stabilité et sa fiabilité dans les régions sensibles.
Ce produit à une classe de résistance au feu REI90, offrant ainsi une sécurité optimale dans les constructions.
Son système de tenon-mortaise facilite la mise en œuvre sur le chantier tout en réduisant les délais de construction.
Des épaisseurs d'isolant de 80 mm (type T) et 120 mm (type XT) sont aussi disponibles, garantissant ainsi une flexibilité en fonction des besoins thermiques spécifiques du projet.
- Stabilité et sa fiabilité dans les régions sensibles
- Robustesse
- Flexibilité
Fiche technique Isokorb D
| Classements | |
|---|---|
| Etanchéïté au feu : | REI 90 |
| Dimensions | |
| Hauteur : | entre 160 cm et 250 cm - (d'autres hauteurs sont possibles sur demande) |
| Épaisseur : | entre 80 mm - (isolant (T)) et 120 mm - (isolant (XT)) |
| Evaluation technique | |
| Evaluation technique : | Avis technique DTA |
| Matériaux | |
| Matériaux : | acier inoxydable - (armatures) |
| Autres caractéristiques techniques du produit | |
|---|---|
| Usage : | industriel |
Famille d'ouvrage
Bureau-Administration
Commerce
Culture-Sport-Loisirs
Enseignement
Industrie-Stockage
Logement collectif
Santé
Avis sur le produit Isokorb D
Donner votre avisAucun avis n’a encore été déposé. Soyez le premier à donner votre avis.


