Module bureau 20' | MLKA
Télécharger la photothèque
Caractéristiques principales
- Nombre de module : 2
- Coloris du conteneur : RAL 7035 gris clair
- Décor intérieur plafond : Blanc
- Parois : Mousse polyuréthane 60 mm
- Plafond : Laine de verre 100 mm
- Plancher : Laine de verre 100 mm
- Revêtement de sol : ETERNAL , 2 mm, R10
- Passage de fourche : écartement 950 mm
- Menuiserie : fenêtres oscillo-battantes de bureau avec volets roulants
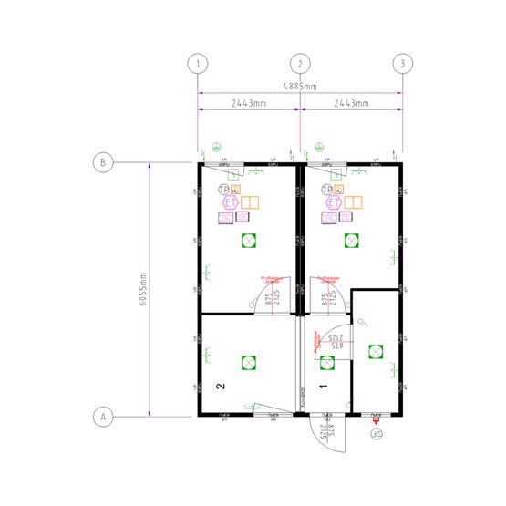
Constitué de 2 unités assemblées, il présente une longueur extérieure de 6 055 mm, une largeur de 4 885 mm et une hauteur totale de 2 591 mm, pour une hauteur intérieure utile de 2 340 mm.
Son enveloppe extérieure adopte le coloris RAL 7035 gris clair, tandis que le plafond intérieur est fini en blanc.
Le bâtiment bénéficie d’une isolation renforcée comprenant des parois en mousse polyuréthane de 60 mm, un plafond isolé en laine de verre de 100 mm et un plancher doté également de 100 mm de laine de verre, complété par un revêtement de sol ETERNAL de 2 mm antidérapant R10.
Équipé d’un passage de fourches de 950 mm, le module offre une manutention facilitée.
La menuiserie comprend des fenêtres oscillo-battantes de bureau avec volets roulants en PVC, en dimensions extérieures 945 x 1 200 mm, dotées d’un vitrage isolant, ainsi qu’une porte extérieure en acier s’ouvrant vers l’extérieur, offrant une largeur libre de 811 mm et une hauteur libre de 2 065 mm.
L’installation électrique intègre 7 prises, dont des prises doubles, ainsi que 3 interrupteurs, garantissant un aménagement fonctionnel adapté à un usage professionnel.
- Installation rapide et simple
- Mobilité et facilité de transport
- Isolation performante
»
Fiche technique MLKA
| Couleur et finition | |
|---|---|
| Couleur : | blanc - Décor intérieur plafond ; gris - clair RAL 7035 (conteneur ) |
| Dimensions | |
| Longueur : | 6055 mm - extérieure |
| Hauteur : | 2591 mm - extérieure |
| Largeur : | 4885 mm - extérieure |
| Autres caractéristiques techniques du produit | |
|---|---|
| Type de fenêtre : | oscillo-battante avec volet roulant |
| Caractéristiques techniques : | Nombre de module : 2 |
Famille d'ouvrage
Aménagement urbain
Bureau-Administration
Industrie-Stockage
Avis sur le produit MLKA
Donner votre avisAucun avis n’a encore été déposé. Soyez le premier à donner votre avis.


