Immeuble R+3 à structure métallique en construction hors site | BATI-FABLAB
Produit sélectionné par la rédaction pour une publication dans la revue Les Cahiers Techniques du Bâtiment - Dossier N°440 du 02/04/2026
Télécharger la photothèque
Caractéristiques principales
- Bâtiment collectif R+3
- Proposé en kit prêt à monter
- Auto-construction rapide et facile
- Résistance aux effets climatique
- Personnalisation possible
Construire mieux, plus vite, avec une faible empreinte carbone.
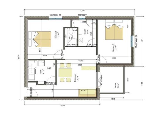
Découvrez ce bâtiment collectif modulaire R+3, de surface 1920 m2 et composé de 4 logements T3 par palier, soit 16 appartements. En kit prêt à monter, il assure du confort, modernité et facilité de montage, en auto-construction.
Le kit standard comprend : la structure périmétrique, la structure des cloisons, la structure des murs, la structure des planchers, la structure des plafonds, la structure des façades et la structure de la toiture.
En option, sont également proposés les deux kits suivants : kit pour niveau de finition “Clos Couvert” et kit pour niveau de finition “Prêt à décorer”.
Soucieuse de l’environnement, BATI-FABLAB propose des bâtiments avec une empreinte de carbone limitée. Ce bâtiment est conçu conformément aux normes DTU 32.3 et Eurocodes afin de garantir un haut confort thermique et une résistance aux effets du climat, corrosion, séismes, termites, etc.
Ce logement collectif est doté d’une structure en acier galvanisé, formé à froid, et est composée de profilés C de 90x40 mm et de 1.5 mm d’épaisseur. Il est élaboré à partir d’une maquette numérique 3D-BIM.
Fiche technique
| Certifications | |
|---|---|
| Certifications : | normes DTU 32.3 et Eurocodes |
| Couleur et finition | |
| Finition : | galvanisée - structure |
| Dimensions | |
| Épaisseur : | 1.5 mm - profilés |
| Surface : | 80 m² - appartement ; 1920 m² - plancher |
| Divers | |
| Garantie : | 10 ans |
| Matériaux | |
| Matériaux : | acier - structure |
| Mise en œuvre | |
| Mise en oeuvre : | pose au sol ; préfabriqué en usine |
Famille d'ouvrage
Logement collectif
Avis sur le produit
Donner votre avisAucun avis n’a encore été déposé. Soyez le premier à donner votre avis.


