Cloison bord-à-bord en acier coupe-feu - EI30 | Gamme SteelTeq
Télécharger la photothèque
Caractéristiques principales
- 2 modèles disponibles
- Simple vitrage
- Intercalaire translucide ou noir
- Système de profilés en acier
- Vitrage EI 30
Cette cloison vitrée fait partie de la gamme SteelTeq de menuiserie intérieure technique qui s’adapte partout. Ce système de menuiserie intérieure est en effet recouru par plusieurs secteurs d'activité en raison de son aspect esthétique, sa performance et sa fonctionnalité. Il est également apprécié en raison de sa finition en thermolaquage Qualisteelcoat Classe 4 dans nuancier RAL standard.
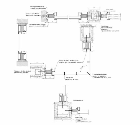
Cette cloison bord-à-bord qui se décline en 2 modèles : cloison bord-à-bord en ligne et cloison bord-à-bord en angle. L'opérateur peut opter pour différents ajustements en simple vitrage, disponibles en option : acoustique, thermique, opale, sérigraphie, etc.
L’intercalaire peut toutefois être translucide ou noir, et ce selon le besoin de l'opérateur.
Ce dispositif coupe-feu est d'ailleurs classé EW 30, EI30 et E 30. Il est même certifié Efectis et est fabriqué selon les normes européennes en vigueur.
La société Eribel adapte l'esthétique et la fonctionnalité de cette cloison, et ce selon les besoins de l'opérateur.
- Performance
- Finition
- Fonctionnalité
- Esthétique
- Un système qui s'adapte partout
Fiche technique Gamme SteelTeq
| Certifications | |
|---|---|
| Certifications : | Efectis |
| Classements | |
| Classement de réaction au feu : | EW 30, EI30 et E 30 |
| Couleur et finition | |
| Finition : | Thermolaquage Qualisteelcoat Classe 4 dans nuancier RAL standard |
| Divers | |
| Options : | Acoustique, thermique, opale, sérigraphie |
| Matériaux | |
| Matériaux : | acier |
| Autres caractéristiques techniques du produit | |
|---|---|
| Caractéristiques techniques : | Vitrage : 1 234 x 2 874 ht Cloison : Illimité x 3 000 ht Hauteur maxi cloison légère : Imposte : 400 ht mm ; Allège 2 200 ht mm Hauteur maxi cloison légère + menuiserie : 3 400 mm |
Famille d'ouvrage
Bureau-Administration
Commerce
Culture-Sport-Loisirs
Enseignement
Hôtel-Restauration
Industrie-Stockage
Logement collectif
Maison individuelle
Santé
Avis sur le produit Gamme SteelTeq
Donner votre avisAucun avis n’a encore été déposé. Soyez le premier à donner votre avis.


