Cloison bord-à-bord en acier coupe-feu - E 30 | Gamme SteelTeq
Télécharger la photothèque
Caractéristiques principales
- Simple vitrage
- Intercalaire translucide ou noir
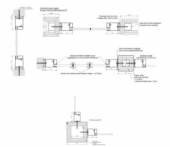
- Système de profilés en acier
- Vitrage E30
- Gamme SteelTeq
- 2 modèles disponibles
Différents secteurs d'activités optent pour cette cloison en acier coupe-feu en raison de sa capacité à s'adapter partout. Elle est en effet installée dans différents supports et s’utilise dans de nombreux secteurs d’activité.
Cet équipement coupe-feu se décline en 2 modèles : cloison bord-à-bord 3 vitrages grande hauteur et cloison bord-à-bord sans renfort.
Ce système de menuiserie intérieure fait partie de la gamme SteelTeq qui se distingue aussi par son aspect esthétique, sa performance et sa fonctionnalité. Il est également apprécié en raison de sa finition en thermolaquage Qualisteelcoat Classe 4 dans nuancier RAL standard. D'autres finitions sont également proposées concernant le choix du tramage, du vitrage et des fonctionnalités.
Il est possible d'ajuster cette cloison bord-à-bord en ligne par les options suivantes : acoustique, thermique, opale, sérigraphie, etc.
L’intercalaire peut toutefois être translucide ou noir, et ce selon le besoin de l'opérateur.
La société Eribel adapte l'esthétique et la fonctionnalité de cette cloison, et ce selon les besoins de l'opérateur.
Cette cloison amovible est classée EW 30 et E 30, certifiée Efectis et est fabriquée selon les normes européennes en vigueur. Ce dispositif coupe-feu garantit ainsi la sécurité des collaborateurs.
- Performance
- Finition
- Fonctionnalité
- Esthétique
- Un système qui s'adapte partout
Fiche technique Gamme SteelTeq
| Certifications | |
|---|---|
| Certifications : | Efectis |
| Classements | |
| Classement de réaction au feu : | EW 30 et E 30 |
| Couleur et finition | |
| Finition : | Thermolaquage Qualisteelcoat Classe 4 dans nuancier RAL standard |
| Divers | |
| Options : | Acoustique, thermique, opale, sérigraphie |
| Matériaux | |
| Matériaux : | acier |
| Autres caractéristiques techniques du produit | |
|---|---|
| Caractéristiques techniques : | Dimensions vitrages : 1 680 x 3 3391 mm ht Dimensions cloisons : Illimité x 3 528 mm ht Hauteur maxi cloison légère : 3 528 mm Hauteur maxi cloison + menuiserie : Imposte : 1 000 ht mm ; Allège 1 200 ht mm |
Famille d'ouvrage
Bureau-Administration
Commerce
Culture-Sport-Loisirs
Enseignement
Hôtel-Restauration
Industrie-Stockage
Logement collectif
Maison individuelle
Santé
Avis sur le produit Gamme SteelTeq
Donner votre avisAucun avis n’a encore été déposé. Soyez le premier à donner votre avis.


