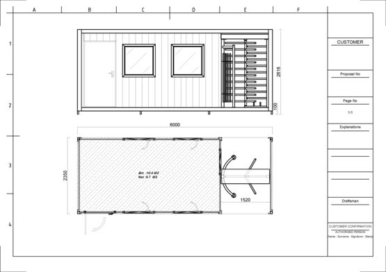
Bâtiment mobile sécurisé avec tourniquet de contrôle d'accès intégré
Télécharger la photothèque Regarder la vidéo
Caractéristiques principales
-
Structure : Container robuste, isolé et sécurisé
-
Tourniquet intégré : Pleine hauteur, passage unitaire, motorisé ou mécanique
-
Caméra de vidéosurveillance : Positionnée pour une couverture optimale
-
Sirène extérieure : Alarme en cas d’intrusion ou d’anomalie
-
Fenêtres et porte d’accueil : Pour poste de contrôle ou d’accueil sécurité
-
Pré-câblé & prêt à l'emploi : Plug & play avec vos systèmes d'accès
✅ Installation rapide, sans travaux
✅ Solution mobile, réutilisable et relocalisable
✅ Sécurisation complète dès l’entrée du chantier
✅ Compatible avec badge, biométrie, QR code
✅ Réduction des risques d’intrusion ou de vol sur site
Retrouvez tous nos produits sur notre site : https://www.accesspro-serviacom.fr/
✅ Solution mobile, réutilisable et relocalisable
✅ Sécurisation complète dès l’entrée du chantier
✅ Compatible avec badge, biométrie, QR code
✅ Réduction des risques d’intrusion ou de vol sur site »
Fiche technique CONTAINERXL
| Mise en œuvre | |
|---|---|
| Espace d'application : | extérieur |
| Autres caractéristiques techniques du produit | |
|---|---|
| Type d'alimentation : | alimentation électrique de sécurité (aes) |
| Caractéristiques techniques : | Robuste |
Famille d'ouvrage
Industrie-Stockage
Vidéo du produit
Avis sur le produit CONTAINERXL
Donner votre avisAucun avis n’a encore été déposé. Soyez le premier à donner votre avis.


