Logiciel de métrés sur plan 2D pour tous les acteurs du bâtiment | JustBIM Starter
Télécharger la photothèque Regarder la vidéo
Caractéristiques principales
-
Des fonctionnalités pour des calculs précis et efficaces
-
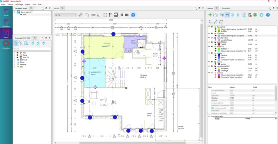
Mesures variées : Calcul des linéaires, des surfaces au sol, des surfaces verticales et des revêtement de pièces.
-
Outils avancés : Création d’ouvertures pour déterminer les surfaces brutes et nettes, avec possibilité d’appliquer divers paramètres pour des résultats détaillés.
-
Exportation facile : Génération de relevés précis exportables vers Excel ou des logiciels de devis.
Gain de temps et adaptabilité
Les plans de repérage avec légendes sont automatiquement générés, offrant une vérification visuelle rapide des métrés. De plus, JustBIM Starter évite les ressaisies en adaptant les métrés existants lors des mises à jour de plans.
Un outil évolutif pour vos besoins futurs
Prêt pour la modélisation 3D et le BIM, JustBIM Starter permet une transition fluide vers les maquettes IFC, offrant une continuité numérique pour les projets les plus complexes.
-
Optimisez vos métrés avec une solution intuitive
Simplifiez la gestion des métrés grâce à JustBIM Starter, une solution idéale pour les entreprises de construction, architectes et bureaux d’études. Cet outil innovant transforme la prise de mesures en un processus numérique rapide et précis, laissant derrière le papier et les calculs fastidieux.
Principaux avantages et compatibilité
Compatible avec une large gamme de formats 2D tels que PDF, JPEG, PNG, et BMP, JustBIM Starter permet d’importer et de travailler sur plusieurs fichiers simultanément. Son interface intuitive assure une prise en main rapide, facilitant ainsi la gestion des projets de toutes tailles.
-
Pourquoi choisir JustBIM Starter ?
-
Interface conviviale et facile à utiliser
-
Adapté à tous les métiers du BTP
-
Flexibilité et personnalisation
-
Gain de temps et amélioration de l’efficacité
-
Évolutivité vers des solutions avancées
Adoptez JustBIM Starter et transformez vos méthodes de métré pour des projets réussis et optimisés.
-
Fiche technique JustBIM Starter
| Autres caractéristiques techniques du produit | |
|---|---|
| Mode de fonctionnement : | automatique |
| Type d'usage : | informatique |
| Usage : | industriel ; tertiaire |
Famille d'ouvrage
Aménagement urbain
Bureau-Administration
Commerce
Culture-Sport-Loisirs
Enseignement
Hôtel-Restauration
Industrie-Stockage
Logement collectif
Maison individuelle
Santé
Vidéo du produit
Avis sur le produit JustBIM Starter
Donner votre avisAucun avis n’a encore été déposé. Soyez le premier à donner votre avis.


