Logiciel de métrés et de chiffrage sur plans 2D et maquettes BIM | JustBIM MAX
Télécharger la photothèque Regarder la vidéo
Date de commercialisation : 01/05/2019
Caractéristiques principales
- Logiciel de métrés et de chiffrage sur plans 2D et maquettes BIM
- Conçu pour les professionnels du bâtiment
- Compatible avec les formats 2D et les maquettes 3D
- Collaboratif et performant
- Pour une estimation précise et collaborative des coûts
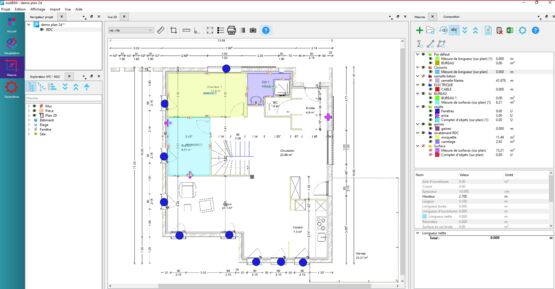
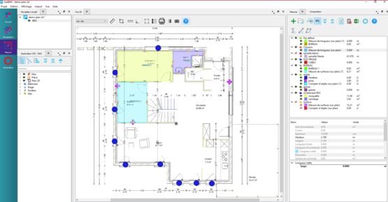
Pour une estimation précise et collaborative des coûts JustBIM MAX offre une approche novatrice pour réaliser les métrés et estimer les coûts directement sur les plans PDF ou maquettes OpenBIM.
Conçu pour les professionnels du bâtiment, ce logiciel combine puissance et simplicité d’utilisation, facilitant ainsi le chiffrage de projets complexes.
Compatible avec les formats 2D et les maquettes 3D, le logiciel prend en charge les fichiers PDF, JPEG, PNG et BMP, ainsi que les maquettes OpenBIM au format IFC issues de logiciels tels que Revit, Archicad ou Allplan. JustBIM MAX permet ainsi une intégration transparente avec les outils de CAO.
Dans sa version la plus récente, JustBIM MAX offre une plateforme unique où architectes, maîtres d’ouvrage, ingénieurs et économistes peuvent collaborer en temps réel.
Les modifications apportées à un fichier IFC sont automatiquement mises à jour pour tous les intervenants, garantissant une coordination optimale.
-
Intégration parfaite avec vos outils
JustBIM MAX se connecte directement à DeviSOC pour la création de CCTP et DPGF, ainsi qu’à Excel pour l’export des documents d’appel d’offres. Cette compatibilité facilite la gestion des données et améliore votre productivité.
Pourquoi choisir JustBIM MAX ?
-
Gain de temps grâce à l’automatisation des calculs
-
Collaboration en temps réel entre les acteurs du projet
-
Visualisation 3D optimisée pour un suivi précis
-
Évolutivité vers des projets BIM complexes
-
Compatibilité étendue avec les principaux logiciels de CAO
Avec JustBIM MAX, simplifiez vos processus de chiffrage tout en renforçant la collaboration et la précision.
-
Fiche technique JustBIM MAX
| Mise en œuvre | |
|---|---|
| Mise en oeuvre : | compatible en openBIM, importation format standard IFC ; annotations format standard BCF ; organisation intuitive des objets grâce aux classifications ou par l'opérateur ; multilingue (français, anglais). |
| Autres caractéristiques techniques du produit | |
|---|---|
| Type d'usage : | informatique |
| Usage : | industriel |
Famille d'ouvrage
Aménagement urbain
Bureau-Administration
Commerce
Culture-Sport-Loisirs
Enseignement
Hôtel-Restauration
Industrie-Stockage
Logement collectif
Maison individuelle
Santé
Vidéo du produit
Avis sur le produit JustBIM MAX
Donner votre avisAucun avis n’a encore été déposé. Soyez le premier à donner votre avis.


