Cornières filantes et précadres en acier galvanisé à chaud | CF et PR
Télécharger la photothèque
Caractéristiques principales
- Cornières filantes et précadres pour montage et fixation de menuiseries, habillages, etc
- Disponibles en deux épaisseurs
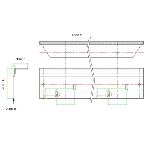
- Pièces comportant 4 zones
- Plusieurs longueurs standards avec possibilité d’adaptation à des longueurs supérieures
- Réserve sur joint d'étanchéité, goussets soudés
- Possibilité de réalisation sur mesure
Les cornières filantes et les précadres sont fabriqués en acier galvanisé à chaud premier choix DX51 D Z275 MA.
Ces accessoires métalliques de fixation comportent 4 zones : zone A qui correspond à la côte de maçonnerie, zone B désignant la côte de menuiserie, zone C déterminant la longueur de la cornière et zone D désignant l’épaisseur de la matière.
Les épaisseurs disponibles sont de 10/10 mm à 30/10 mm. Les longueurs, elles, peuvent atteindre 3000 mm pour des demandes standards
Pour des longueurs supérieures, il est possibles d'associer à ces accessoires des éclisses de raccordement .
Possibilité de réalisation sur mesure, réserve sur joint d’étanchéité, goussets soudés.
Les cornières filantes et les précadres CF et PR sont conformes à la Norme Européenne NF EN 10327 Janvier 2005.
- Qualité de fabrication
- Résistance
- Polyvalence
- Durabilité
Fiche technique CF et PR
| Autres classements, Certificats, Labels, Marques | |
|---|---|
| Autres : | Conformes à la Norme Européenne NF EN 10327 Janvier 2005 |
| Couleur et finition | |
| Finition : | galvanisée - à chaud |
| Dimensions | |
| Longueur : | 3000 mm - possibilité de longueurs supérieures |
| Épaisseur : | 1 mm ; 3 mm |
| Matériaux | |
| Matériaux : | acier - 1er choix DX51 D Z275 MA. |
| Mise en œuvre | |
| Espace d'application : | extérieur ; intérieur |
| Mise en oeuvre : | pose vissée |
Famille d'ouvrage
Aménagement urbain
Bureau-Administration
Commerce
Culture-Sport-Loisirs
Enseignement
Hôtel-Restauration
Industrie-Stockage
Logement collectif
Maison individuelle
Santé
Avis sur le produit CF et PR
Donner votre avisAucun avis n’a encore été déposé. Soyez le premier à donner votre avis.


