La référence des produits de la construction 30 000 produits - 5 000 fabricants - 200 000 mises en relation par an

Télécharger d'autres documentations sur le produit

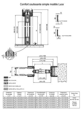
Portes d’intérieur coulissantes et battantes en bois | Comfort Luce

Portes d’intérieur coulissantes et[...]

de Scrigno

Gratuit et Sans engagement

Les fournisseurs sélectionnés entrent en contact avec vous

Le service client de Batiproduits répond à vos questions au
01 79 06 79 00
Du lundi au vendredi
de 9h à 18h

Vous trouverez le lien de téléchargement gratuit en page de confirmation

Décrivez votre demande (facultatif, mais recommandé)

Vous êtes :

En cliquant ci-dessus, j’autorise Batiproduits de la société Groupe Moniteur (Nanterre B 403 080 823) et ses partenaires, à me communiquer devis et informations. Le Groupe Moniteur ou toutes sociétés du groupe Infopro Digital pourront utiliser vos coordonnées afin de vous proposer pour leur compte ou celui de leurs clients, des produits et/ou services utiles à vos activités professionnelles ou vous intégrer dans des annuaires professionnels. Pour exercer vos droits, vous y opposer ou pour en savoir plus : Charte de données personnelles.

Le contenu ci-dessus est extrait et converti automatiquement à partir de la documentation complementaire au format pdf. La mise en forme n'est donc pas conforme à celle du fichier pdf que nous vous proposons de recevoir par email.