Bâtiment modulaire d'occasion 1289-1290 - 30 m² | Cougnaud
Cougnaud
Occasion
Caractéristiques principales
- Flexibilité d'utilisation
- Construction robuste et sécurisée
- Confort et luminosité
- Équipement électrique complet
- Options de personnalisation
Destiné aux travaux et aux chantiers de courte ou de longue durée, le bâtiment modulaire d'occasion 1289-1290 de la gamme Cougnaud dispose d'une surface de 30 m² et peut-être utilisé comme bureau et/ou salle de réunion.
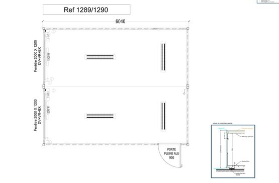
Cette préfabrication est composée de deux cadres de 6,04 x 2,44 m avec une hauteur sous plafond de 2,30 m en acier galvanisé laqué blanc, et des panneaux muraux isolés en mousse de polyuréthane de 40 mm d'épaisseur.
En termes de menuiserie, ce bureau de chantier contient une porte extérieure de 0,90 m, ainsi que deux fenêtres à barreaux de 2 x 1,20 m en double vitrage et volet roulant.
Ce bungalow préfabriqué est équipé d’un tableau électrique général monophasé x 2, de 4 fluos double à grille, de 7 prises de courant, et de 2 convecteurs électriques de 1 500 W.
Le client peut, en option, bénéficier de services de transfert (d'un point A à un point B) et de rachat de son ancien bureau modulaire.
Ce bâtiment modulaire d'occasion est particulièrement adapté aux chantiers de construction, aux événements temporaires, aux installations industrielles, aux sites de forage ou d'exploitation minière et aux installations temporaires pour les services d'urgence.
«
Polyvalence d'application
Réponse aux besoins d'urgence
»
Cette préfabrication est composée de deux cadres de 6,04 x 2,44 m avec une hauteur sous plafond de 2,30 m en acier galvanisé laqué blanc, et des panneaux muraux isolés en mousse de polyuréthane de 40 mm d'épaisseur.
En termes de menuiserie, ce bureau de chantier contient une porte extérieure de 0,90 m, ainsi que deux fenêtres à barreaux de 2 x 1,20 m en double vitrage et volet roulant.
Ce bungalow préfabriqué est équipé d’un tableau électrique général monophasé x 2, de 4 fluos double à grille, de 7 prises de courant, et de 2 convecteurs électriques de 1 500 W.
Le client peut, en option, bénéficier de services de transfert (d'un point A à un point B) et de rachat de son ancien bureau modulaire.
Ce bâtiment modulaire d'occasion est particulièrement adapté aux chantiers de construction, aux événements temporaires, aux installations industrielles, aux sites de forage ou d'exploitation minière et aux installations temporaires pour les services d'urgence.
Fiche technique Cougnaud
Couleur et finition
- Couleur : blanc
Dimensions
- Longueur : 6.04 m
- Hauteur : 2.30 m - sous plafond
- Largeur : 4.88 m
- Surface : 30 m²
Divers
- Options : Transfert du modulaire d'un point A vers un point B<br> Rachat du modulaire ancien<br>
Matériaux
- Matériaux : Toiture en tôle galvanisée <br> hauteur sous-plafond en acier galvanisé laqué blanc <br>
Mise en œuvre
- Mise en oeuvre : pose au sol
Autres caractéristiques techniques du produit
- Usage : industriel
- Caractéristiques techniques : Nombre d'ossatures : 2 <br> Localisation : 44 <br>
Famille d'ouvrage
Aménagement urbain
Industrie-Stockage
Avis sur le produit Cougnaud
Aucun avis n’a encore été déposé. Soyez le premier à donner votre avis.